de
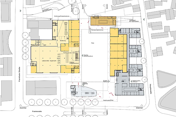
'Stadtmitte Nord' Kelkheim im Taunus
Investorenwettbewerb 3. Preis
Navigation überspringen
Bilder
Text
Navigation überspringen
> Projektarchiv